Erfolgreich umgesetzte Projekte und Beteiligungen.

Sie interessieren sich für unsere bisherigen Projekte? – Das freut uns sehr, denn wir zeigen sie Ihnen gern. Mit ein bisschen Stolz über das Erreichte erzählen wir Ihnen gern, was das Besondere an jedem Projekt ist. Was die Herausforderungen waren und wie wir sie gemeistert haben. Jedes Projekt heißt auch eine Bereicherung an Erfahrungen. Die Summe unserer Erfahrungen ist der Berg, auf dem wir stehen. Von hier blicken wir in die Zukunft und auf die nächsten Projekte. Im Folgenden finden Sie eine Auswahl. Viel Freude mit unseren Referenzen.

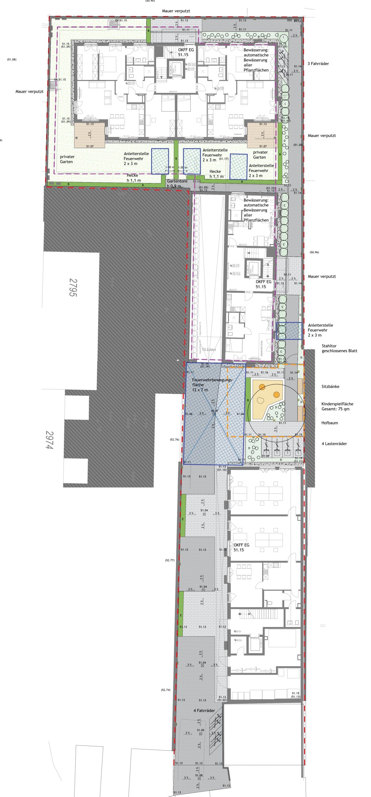
Kronenhöfe

Würselen

34.000 m² Brutto-Grundfläche
B-Plan

  • Projektentwicklung
  • Projektleitung + Projektsteuerung Bauherr
  • Entwicklung B-Plan

Bauherr:
KD Kronenhöfe GmbH & Co.KG

Stauffenberg-Quartier

Leverkusen

11.000 m² Brutto-Grundfläche
B-Plan

  • Projektentwicklung
  • Projektleitung + Projektsteuerung Bauherr
  • Entwicklung B-Plan

Bauherr:
Stauffenberg-Quartier Projekt GmbH & Co.KG

Studentenwohnen
Karl-Marx-Allee 220

Aachen

12.200 m² Brutto-Grundfläche
233 Wohnheimplätze

  • Projektentwicklung
  • Projektleitung + Projektsteuerung Bauherr
  • Koordination Fachplaner
  • Kostenmanagement
  • GU-Abwicklung
  • Ausschreibung Möblierung

Bauherr:
KD Aachen Karl-Marx-Allee mbH & Co. KG

Rhineview
Revitalisierung + Neubau

Köln

925 m² Brutto-Grundfläche
11 Wohneinheiten

  • Projektentwicklung
  • Projektleitung + Projektsteuerung Bauherr
  • Koordination Fachplaner
  • Kostenmanagement
  • GU-Abwicklung

Bauherr:
CH Castle Homes GmbH & Co. Rodenkirchen KG

WvM1

Köln

10.800 m² Brutto-Grundfläche
120 Wohneinheiten

  • Projektentwicklung + Grundstücksankauf
  • Projektleitung + Projektsteuerung Bauherr

Bauherr:
Lindgens-Areal Projekt GmbH & Co. KG

WvM4

Köln

4.730 m² Brutto-Grundfläche
Gewerbe

  • Projektentwicklung + Grundstücksankauf
  • Projektleitung + Projektsteuerung Bauherr

Bauherr:
Herr Wolfgang von Moers

Mühlenquartier Benrath

Düsseldorf

43.895 m² Brutto-Grundfläche
364 Wohneinheiten

  • Projektentwicklung + Grundstücksankauf
  • Projektleitung + Projektsteuerung Bauherr
  • Koordination Fachplaner + GU
  • Koordination Erwerber und Kaufverträge
  • Kostenmanagement
  • GU-Abwicklung

Bauherr:
Artemis Stadtsanierungsgesellschaft Objekt Rüttenscheid mbH & Co. KG

LIVING 108

Berlin Mitte

9.700 m² Brutto-Grundfläche
131 Wohneinheiten

  • Projektentwicklung + Grundstücksankauf
  • Projektleitung + Projektsteuerung Bauherr
  • Koordination Fachplaner + GU
  • Koordination Erwerber und Kaufverträge
  • Kostenmanagement
  • GU-Abwicklung

Bauherr:
Peach Property Group Deutschland AG

Henri3

Essen

4.785 m² Brutto-Grundfläche
67 Wohneinheiten

  • Projektentwicklung + Grundstücksankauf
  • Projektleitung + Projektsteuerung Bauherr
  • Koordination Fachplaner + GU
  • Koordination Erwerber und Kaufverträge
  • Kostenmanagement
  • GU-Abwicklung

Bauherr:
Artemis Stadtsanierungsgesellschaft Objekt Rüttenscheid mbH & Co. KG

A43

Hamburg Alsterkamp

2.389 m² Brutto-Grundfläche
13 Wohneinheiten

  • Projektentwicklung + Grundstücksankauf
  • Projektleitung + Projektsteuerung Bauherr
  • Koordination Fachplaner + GU
  • Koordination Erwerber und Kaufverträge
  • Kostenmanagement
  • GU-Abwicklung

Bauherr:
Peach Property Group Deutschland AG

Dürener Straße 223

Köln

3.100 m² Brutto-Grundfläche
10 Wohneinheiten
4 Gewerbeeinheiten

  • Projektentwicklung + Grundstücksankauf
  • Projektleitung + Projektsteuerung Bauherr

Bauherr:
PQ Lindenthal 2 GmbH

Godorfer Str. 15-17

Köln

5.100 m² Brutto-Grundfläche
22 Wohneinheiten

  • Projektentwicklung + Grundstücksankauf
  • Projektleitung + Projektsteuerung Bauherr

Bauherr:
RBL Immendorf GmbH & Co. KG